Leave a Message

Thank you for your message. We will be in touch with you shortly.

Explore Our Properties

Property Description

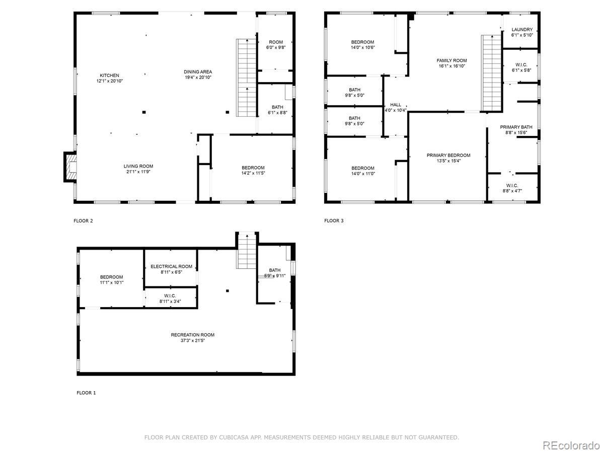
Stunning custom remodel in the heart of historic Park Hill. This property is a one-of-a-kind remodel that incorporates an expanded 1920s brick bungalow blending vintage character with a sleek modern design. This is not your typical pop top! This home features an open layout, soaring high ceilings, 4" hickory hardwoods, exposed interior brick, steel beams, modern open staircase and other designer finishes. Step inside the gourmet kitchen with Wolf gas stove, Electrolux appliances, cedar ceiling, and high-end custom cabinetry.

Upstairs, discover the luxurious primary suite, including a spa like bathroom featuring a large 2 fixture shower, freestanding tub, and two ample walk-in closets. Completing the upstairs is 2 more bedrooms with ensuite bathrooms. Relax in the media loft area perfect for movie nights or gaming. In the basement, find a wet bar, guest suite, and full bath.

Rare indoor-outdoor dining via roll-up garage door leads to a covered patio, and an outdoor kitchen with built in gas grill. This property is incredibly sexy with a stunning landscaped oasis featuring mature trees, lighting, and irrigation. Enjoy beverages with friends around a huge gas fire pit perfect for gatherings. Enjoy the new roof, new Hardie siding, HVAC, paint, and a newer custom 2-car garage with workshop. The garage is thoughtfully designed, incorporating the style of the home. Walk to City Park, Denver Zoo, and Park Hill favorites like Honey Hill bakery, Long Table Brewery, Sexy Pizza and so much more. As a bonus, coming soon in the area is a planned public park which will be the 4th largest park in the City. Highly rated schools including East High School, McAuliffe Middle School and Park Hill Elementary. A true one of a kind Park Hill experience.

Overview

Property Status
Sold
Lot Size
5,950 Sq.Ft.
MLS ID
9899715
Property Type
Residential
Year Built
1914

Features & Amenities

Total Area
3,688 Sq.Ft.
Neighborhood
Denver
Architecture Styles
Contemporary, Denver Square
Stories
2
Garage Spaces
2.0
Water Source
Public
Utilites
Cable Available, Electricity Connected, Internet Access (Wired), Natural Gas Available, Natural Gas Connected, Phone Available, Phone Connected
Roof
Composition
Lot Features
Level
Parking
220 Volts, Oversized, Oversized Door, Storage
Heat Type
Forced Air, Natural Gas
Air Conditioning
Central Air
Laundry Room
Sink, In Unit, Laundry Closet
Fireplace
Family Room, Gas, Great Room
Appliances
Dishwasher, Disposal, Double Oven, Dryer, Gas Water Heater, Microwave, Oven, Washer
Other Interior Features
Ceiling Fan(s), Five Piece Bath, High Ceilings, Kitchen Island, Open Floorplan, Pantry, Primary Suite, Quartz Counters, Radon Mitigation System, Smoke Free, Walk-In Closet(s), Wet Bar, Wired for Data
Sewer
Public Sewer
Substructure
Slab
Other Exterior Features
Barbecue, Dog Run, Fire Pit, Garden, Gas Grill, Gas Valve, Lighting, Private Yard
Elementary School
Stedman
Middle School
McAuliffe International
High School
East
School District
Denver 1
Sales Price
$1,600,000
Real Estate Tax
$7,677/yr
Zoning
U-SU-C

Downloads

2669 N Cherry Street

Schedule a Tour

We would love to help you see this beautiful home! As a full-service brokerage, we can help you tour. Please submit an offer, and answer questions about the buying process.

Enter a valid email

Thank you

for your interest in 2669 N Cherry Street, Denver, CO 80207

back to page
2669 N Cherry Street
Navigate
Denver

Explore Denver

39.7392° N, 104.9903° W

read more
2669 N Cherry Street
explore in 3d

I'm Interested In

2669 N Cherry Street

Browse Our

Notable Transactions

  • 2332 S Columbine Street Sold

    $6,104,569

    2332 S Columbine Street, Denver, CO 80210

    Listed by MJS Development

    • 5 Beds
    • 6 Baths
    • 7,661 Sq.Ft.
  • 9719 Chatridge Court Sold

    $5,899,999

    9719 Chatridge Court, Littleton, CO 80125

    • 8 Beds
    • 12 Baths
    • 12,448 Sq.Ft.
  • 715 S Steele Street Sold

    $4,700,000

    715 S Steele Street, Denver, CO 80209

    Listed by The Agency - Denver

    • 5 Beds
    • 6 Baths
    • 5,972 Sq.Ft.
  • 15100 W Belleview Ave Sold

    $4,650,000

    15100 West Belleview Avenue, Morrison, CO 80465

    • 6 Beds
    • 8 Baths
    • 6,930 Sq.Ft.
  • 200 Equinox Drive Sold

    $4,100,000

    200 Equinox Drive, Castle Rock, CO 80108

    Listed by LIV Sotheby's International Realty

    • 4 Beds
    • 5 Baths
    • 7,932 Sq.Ft.
  • 1133 14th Street Unit: 3400 Sold

    $4,025,000

    1133 14th Street Unit: 3400, Denver, CO 80202

    • 3 Beds
    • 4 Baths
    • 3,336 Sq.Ft.
  • 4 Spencer Ct Sold

    $3,675,000

    4 Spencer Court, Breckenridge, CO 80424

    • 5 Beds
    • 6 Baths
    • 5,328 Sq.Ft.
  • 5460 S Olive Street Sold

    $3,420,000

    5460 S Olive Street, Greenwood Village, CO 80111

    Listed by eXp Realty, LLC

    • 5 Beds
    • 5 Baths
    • 6,563 Sq.Ft.
  • 202 Summit Boulevard Sold

    $3,400,000

    202 Summit Boulevard, Cherry Hills Village, CO 80113

    Listed by Compass - Denver

    • 5 Beds
    • 5 Baths
    • 5,881 Sq.Ft.
  • 865 S Columbine Street Sold

    $3,345,000

    865 S Columbine Street, Denver, CO 80209

    • 7 Beds
    • 5 Baths
    • 6,030 Sq.Ft.
  • 7880 Galileo Way Sold

    $3,100,000

    7880 Galileo Way, Littleton, CO 80125

    • 4 Beds
    • 6 Baths
    • 5,574 Sq.Ft.
  • 427 Whispering Pines Circle Sold

    $3,000,000

    427 Whispering Pines Circle, Breckenridge, CO 80424

    Listed by Keller Williams Top Of The Rockies

    • 4 Beds
    • 5 Baths
    • 3,006 Sq.Ft.
  • 29822 Troutdale Scenic Drive Sold

    $2,896,000

    29822 Troutdale Scenic Drive, Evergreen, CO 80439

    Listed by Coldwell Banker Global Luxury Denver

    • 6 Beds
    • 7 Baths
    • 7,631 Sq.Ft.
  • 5035 Co Road 104 Sold

    $2,800,000

    5035 Co Road 104, Guffey, CO 80820

    Listed by Compass - Denver

    • 4 Beds
    • 5 Baths
    • 4,660 Sq.Ft.
  • 850 E Radcliff Avenue Sold

    $2,800,000

    850 E Radcliff Avenue, Cherry Hills Village, CO 80113

    Listed by LIV Sotheby's International Realty

    • 5 Beds
    • 6 Baths
    • 9,178 Sq.Ft.
  • 334 S Gaylord Street Sold

    $2,725,000

    334 S Gaylord Street, Denver, CO 80209

    Listed by LIV Sotheby's International Realty

    • 4 Beds
    • 5 Baths
    • 4,387 Sq.Ft.
  • 10095 S Shadow Hill Drive Sold

    $2,650,000

    10095 S Shadow Hill Drive, Lone Tree, CO 80124

    Listed by Engel Voelkers Castle Pines

    • 5 Beds
    • 6 Baths
    • 6,705 Sq.Ft.
  • 2 Fieldstone Trail Sold

    $2,550,000

    2 Fieldstone Trail, Englewood, CO 80113

    Listed by Compass - Denver

    • 5 Beds
    • 5 Baths
    • 7,472 Sq.Ft.
  • 3606 N Raleigh Street Sold

    $2,550,000

    3606 N Raleigh Street, Denver, CO 80212

    Listed by eXp Realty, LLC

    • 5 Beds
    • 4 Baths
    • 4,031 Sq.Ft.
  • 1133  14th Street  3220 Sold

    $2,450,000

    1133 14th Street 3220, Denver, CO 80202

    • 3 Beds
    • 4 Baths
    • 3,067 Sq.Ft.
  • 1510 S Clayton Street Sold

    $2,450,000

    1510 S Clayton Street, Denver, CO 80210

    Listed by LIV Sotheby's International Realty

    • 6 Beds
    • 5 Baths
    • 5,239 Sq.Ft.
  • 536 S Race Street Sold

    $2,430,000

    536 S Race Street, Denver, CO 80209

    Listed by Compass - Denver

    • 5 Beds
    • 4 Baths
    • 4,684 Sq.Ft.
  • 1400 S Race Street Sold

    $2,425,000

    1400 S Race Street, Denver, CO 80210

    Listed by Milehimodern

    • 5 Beds
    • 6 Baths
    • 5,382 Sq.Ft.
  • 3708 G Road Sold

    $2,329,000

    3708 G Road, Palisade, CO 81526

    • 14,232 Sq.Ft.
  • 334 Thunderbolt Drive Sold

    $2,280,000

    334 Thunderbolt Drive, Granby, CO 80446

    Listed by West and Main Homes Inc

    • 4 Beds
    • 5 Baths
    • 4,350 Sq.Ft.
  • 568 S Gilpin Sold

    $2,250,000

    568 S Gilpin, Denver, CO 80209

    • 3 Beds
    • 5 Baths
    • 4,109 Sq.Ft.
  • 1170 S Monroe Street Sold

    $2,200,000

    1170 S Monroe Street , Denver , CO 80210

  • 1650 Fillmore Street Unit: 1107 Sold

    $2,150,000

    1650 Fillmore Street Unit: 1107, Denver, CO 80206

    • 3 Beds
    • 4 Baths
    • 3,547 Sq.Ft.
  • 848 S Corona Street Sold

    $2,105,000

    848 S Corona Street, Denver, CO 80209

    Listed by Evernest Realty Advisors

    • 6 Beds
    • 6 Baths
    • 4,513 Sq.Ft.
  • 516 Grant Avenue Sold

    $2,100,000

    516 Grant Avenue, Louisville, CO 80027

    Listed by eXp Realty, LLC

    • 5 Beds
    • 5 Baths
    • 3,702 Sq.Ft.
  • 94 Creamery Trail Sold

    $2,075,000

    94 Creamery Trail, Edwards, CO 81632

    Listed by Sold Entered for Comps Only

    • 4 Beds
    • 4 Baths
    • 3,157 Sq.Ft.
  • 100 Detroit Street Unit: 406 Sold

    $2,050,000

    100 Detroit Street Unit: 406, Denver, CO 80206

    Listed by Milehimodern

    • 2 Beds
    • 3 Baths
    • 2,131 Sq.Ft.
  • 380 W Juan Way Sold

    $2,025,000

    380 W Juan Way, Castle Rock, CO 80108

    Listed by Compass - Denver

    • 4 Beds
    • 4 Baths
    • 6,139 Sq.Ft.
  • 7950 W 62nd Avenue Sold

    $2,000,000

    7950 W 62nd Avenue, Arvada, CO 80004

  • 651 N Emerson Street Sold

    $1,940,000

    651 N Emerson Street, Denver, CO 80218

    • 6 Beds
    • 4 Baths
    • 5,669 Sq.Ft.
  • 5455 Landmark Place Unit: 1009 Sold

    $1,900,000

    5455 Landmark Place Unit: 1009, Greenwood Village, CO 80111

    Listed by eXp Realty, LLC

    • 3 Beds
    • 3 Baths
    • 2,383 Sq.Ft.
  • 6506 Farthing Drive Sold

    $1,850,000

    6506 Farthing Drive, Colorado Springs, CO 80906

    • 6 Beds
    • 5 Baths
    • 7,182 Sq.Ft.
  • 685 S Vine Street Sold

    $1,850,000

    685 S Vine Street, Denver, CO 80209

    • 5 Beds
    • 4 Baths
    • 3,400 Sq.Ft.
  • 691 S Vine Street Sold

    $1,850,000

    691 S Vine Street, Denver, CO 80209

    • 6 Beds
    • 4 Baths
    • 3,367 Sq.Ft.
  • 584 Blue Jay Drive Sold

    $1,750,000

    584 Blue Jay Drive, Golden, CO 80401

    • 5 Beds
    • 4 Baths
    • 4,661 Sq.Ft.
  • 4041 S Dexter Street Sold

    $1,700,000

    4041 S Dexter Street, Cherry Hills Village, CO 80113

    Listed by Compass - Denver

    • 3 Beds
    • 3 Baths
    • 3,363 Sq.Ft.
  • 579 Backcountry Lane Sold

    $1,665,000

    579 Backcountry Lane, Highlands Ranch, CO 80126

    Listed by David Deveau

    • 5 Beds
    • 6 Baths
    • 5,493 Sq.Ft.
  • 1024 5th Street Sold

    $1,650,000

    1024 5th Street, Golden, CO 80403

    Listed by Guide Real Estate

    • 4 Beds
    • 4 Baths
    • 3,145 Sq.Ft.
  • 16611 W 48th Lane Sold

    $1,650,000

    16611 W 48th Lane, Golden, CO 80403

    • 5 Beds
    • 5 Baths
    • 5,715 Sq.Ft.
  • 16237 W 51st Lane Sold

    $1,642,500

    16237 W 51st Lane, Golden, CO 80403

    • 5 Beds
    • 5 Baths
    • 6,100 Sq.Ft.
  • 10330 W 74th Place Sold

    $1,625,000

    10330 W 74th Place, Arvada, CO 80005

    Listed by LIV Sotheby's Intl Realty

    • 6 Beds
    • 4 Baths
    • 5,336 Sq.Ft.
  • 10330 W 74th Place Sold

    $1,625,000

    10330 W 74th Place, Arvada, CO 80005

    Listed by LIV Sotheby's International Realty

    • 6 Beds
    • 4 Baths
    • 5,336 Sq.Ft.
  • 2669 N Cherry Street Sold

    $1,600,000

    2669 N Cherry Street, Denver, CO 80207

    Listed by LIV Sotheby's International Realty

    • 5 Beds
    • 5 Baths
    • 3,688 Sq.Ft.
  • 9311 E Star Hill Trail Sold

    $1,600,000

    9311 E Star Hill Trail, Lone Tree, CO 80124

    Listed by Keller Williams DTC

    • 5 Beds
    • 5 Baths
    • 4,953 Sq.Ft.
  • 5460 S Olive Street Sold

    $1,595,000

    5460 S Olive Street, Greenwood Village, CO 80111

    Listed by Kentwood Real Estate Cherry Creek

    • 4 Beds
    • 4 Baths
    • 6,563 Sq.Ft.
View All

Follow Us On Instagram